autocad drafting
Technical design partner for interior designers.
Clear, accurate AutoCAD drawings that interior designers can confidently issue to clients, consultants, and contractors.

Educated in NKBA (National Kitchen & Bath Association) planning guidelines.
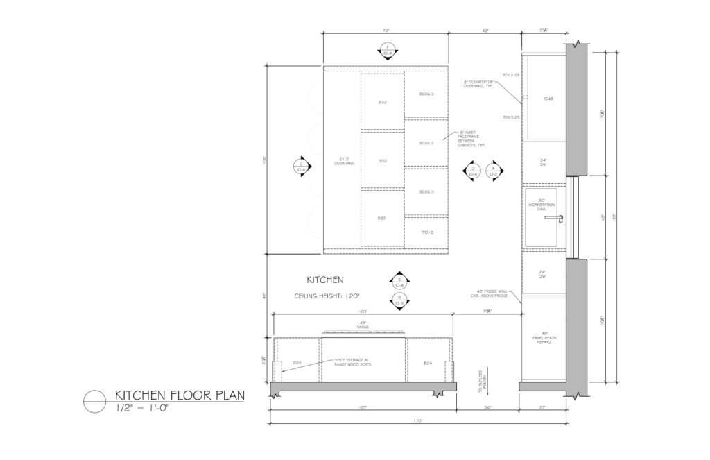
floor plans
I create floor plans that communicate cabinetry layouts and dimensions so designers, clients, and contractors can easily understand the intent of the space.
FLOORPLANS
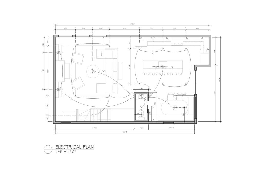
ELECTRICAL PLANS
LIGHTING PLANS
MECHANICAL PLANS
CONSTRUCTION PLANS
DEMOLITION PLANS
REFLECTED CEILING PLANS


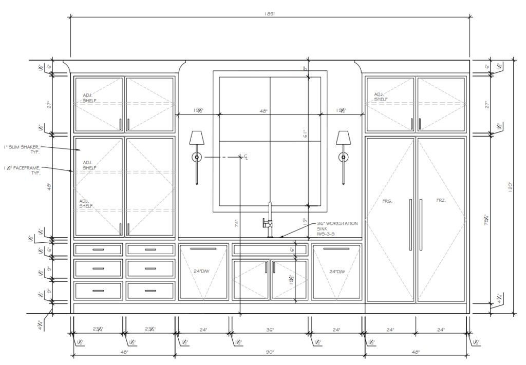
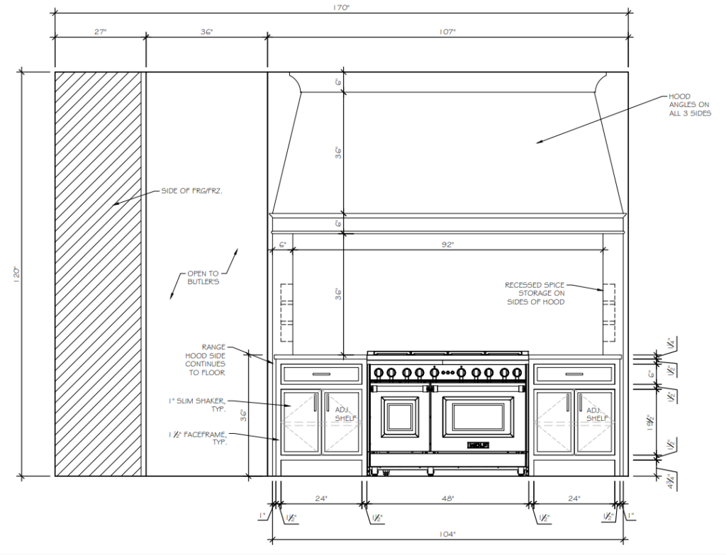
elevations
Elevations bring vertical surfaces to life. I produce detailed elevations that correspond to the floor plan, illustrating cabinetry, appliances, fixtures, materials, and finishes so that every element is understood.




inquire
If you would like to see examples, have questions on pricing, or have any ideas you want to discuss, feel free to reach out.
